1
/
/
3
Grillikota 9 m² + sauna
Grillikota 9 m² + sauna
Normaalihinta
Tarjoustuote, hinta alkaen: 0,00 €
Grillikota 9 m² + sauna on suunniteltu tuomaan Suomen Lapin tunnelma sinun pihallesi. Grillikota 9 m² + sauna yhdistyy grillikodan ja saunakodan ominaisuudet. Grillikodassa voit istua iltaa ja valmistaa tulen ääressä maittavaa ruokaa. Kun ilta alkaa hämärtymään, niin voit vieraittesi kanssa siirtyä saunan puolelle nauttimaan puukiukaan lempeistä löylyistä. Grillikota 9 m² + sauna on myös erinomainen vierasmaja, kun vieraasi haluavat viettää ikimuistoisen yön kodassa.
Grillikota 9 + sauna A
- Seinä- ja kattoelementit
- Ikkunat ja ulko-ovi
- Istuinpenkit
- Irralliset lattiaelementit
- Saunassa lauteet ja lattiarallit
- Asennustarvikkeet
- Ohjeet
Grillikota 9 + sauna B
- ARCTIC grilli
- Savukupu
- Grillipöydät ja loimulaudat
- Saunassa kiuas ja kiuaskivet
- Savupiippu ja vesisäiliö
- Katossa eristyselementit (40 mm)
Grillikota 9 + sauna C
- Lapintuotepaketti
- Porontaljat
- Kuparipannu ja parilapannu
Tekniset tiedot
Tekniset tiedot
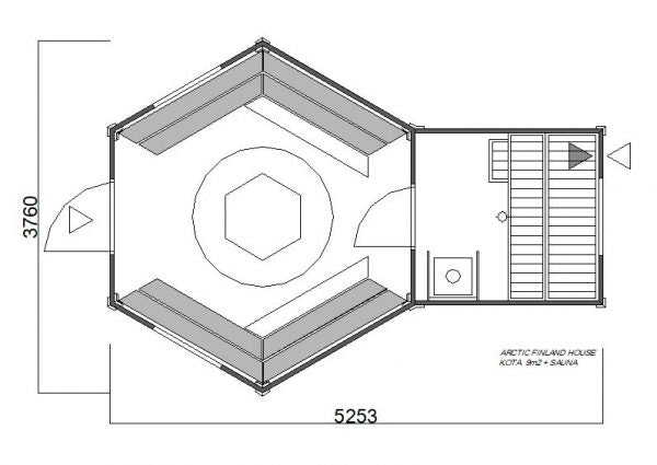
6-kulmainen kota, jossa tilaa 10 henkilölle + Sauna, jossa tilaa neljälle saunojalle
- Seinämateriaali: 45 x 145 mm mänty
- Kattoelementin materiaali: runko + 18 mm mäntypaneeli, saunan kattoelementissä 40 mm uretaanieristys
- Katemateriaali: palahuopa (eri värivaihtoehtoja)
- Ikkunat: kodassa 2 avattavaa ikkunaa kaksinkertaisella lasilla ja saunassa 1 kiinteä ikkuna
- Saunanovi: lasiovi
- Ulko-ovi: liimapuinen lukollinen mäntyovi
Liitetiedostot
Liitetiedostot
Jaa


